多段タービンポンプ 参考品番 T-R656X2ME5.5  川本T-R形タービンポンプ 構造図
川本T-R形タービンポンプ 構造図
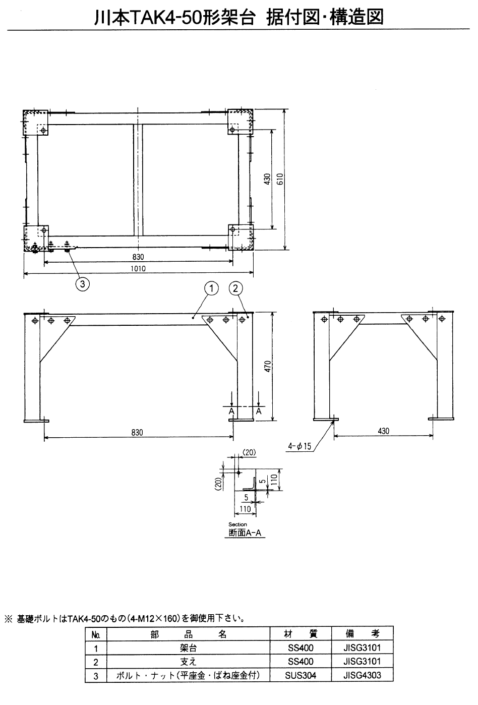
川本 TAK4-50形架台 据付図・構造図
 
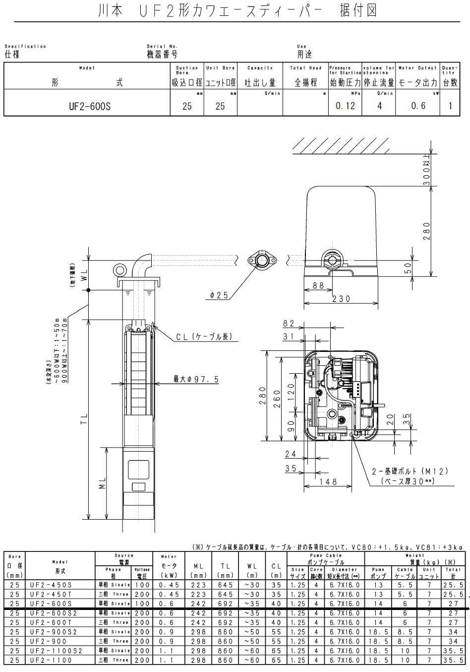
川本 UF2形 カワエースディーパー 据付図
川本 UF2形 カワエースディーパー 据付図
us2-600